 
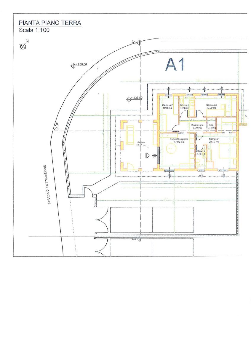
			A Nepi, in una zona di recente espansione residenziale, abbiamo il piacere di proporre villini realizzati in edilizia sostenibile, in linea con la nuova e sempre più diffusa sensibilità alle tematiche ambientali. Le abitazioni, disposte su un unico livello, hanno diverse dimensioni ed un taglio moderno con possibilità di personalizzazione nella disposizione degli ambienti e rifiniture. Gli immobili sono realizzati con moderni standard abitativi in termini di sicurezza antisismica, comfort termico ed acustico, sicurezza al fuoco e prestazioni energetiche. Sono dotate di impianto fotovoltaico 3 Kw, impianto di condizionamento caldo/freddo canalizzato con controllo della temperatura per ambienti; tutto è reso possibile dalla tecnologia X-Lam, che permette di ottenere abitazioni durevoli come gli edifici tradizionali con ottima resistenza al fuoco e riduzione dei consumi, grazie alla coibentazione e al doppio isolamento interno ed esterno. La villa di 118,80 mq verrà realizzata su un unico livello e disporrà di salone con angolo cottura, tre camere da letto, doppi servizi, disimpegno, ripostiglio, portico e giardino di mq 432. La consegna è prevista a 12 mesi dall'ordine.
Ti interessa visionare l'immobile?